Best5
店舗が叶う市役所通りの歩道に面した贅沢な立地♪
素敵な街のとっても希少な立地!
店舗やりたいご家族の夢をかなえるお家♪
今しかない贅沢なロケーションです!
店舗やりたいご家族の夢をかなえるお家♪
今しかない贅沢なロケーションです!
蕨市役所と和楽備神社の中心にある立地!
ゆったりとした歩道付きの16m道路に面した
東南角地は、第一種住居地域です。
ミニショップはもちろん重食店舗の可能な
エリアなので、23㎡の店舗面積を生かせば
カウンタービストロ・ワインダイニング、
コース専門料理店、カフェ、ケーキ店などなど
夢が広がる希少な立地です。
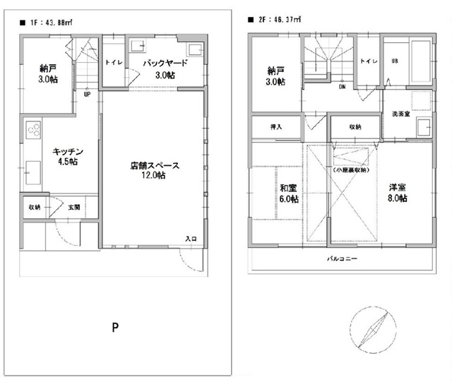
2階は居室が2つと3.0帖の納戸があるので、
ご家族3人なら充分な広さがあります。
ゆったりとした歩道付きの16m道路に面した
東南角地は、第一種住居地域です。
ミニショップはもちろん重食店舗の可能な
エリアなので、23㎡の店舗面積を生かせば
カウンタービストロ・ワインダイニング、
コース専門料理店、カフェ、ケーキ店などなど
夢が広がる希少な立地です。
2階は居室が2つと3.0帖の納戸があるので、
ご家族3人なら充分な広さがあります。
おすすめ度
0%
住宅としても広い歩道に面した東南角地、日当たりも良く風も通りとても素敵なお家です。 それ以上に店舗が叶う立地は、とっても希少価値大です。
店舗は23㎡と広くはありませんが、いままで育んできた夢を形にできる、そんなお家ではないでしょうか、 ぜひ実現させてください。
店舗は23㎡と広くはありませんが、いままで育んできた夢を形にできる、そんなお家ではないでしょうか、 ぜひ実現させてください。
評価額
0%
土地 前面路線価 19万円/㎡ 公示価格換算 27.14万円/㎡ 東南16m公道×4m私道の角地、駅徒歩13分の立地ですので、 27.14万円×1.5×1.2=48.85万円/㎡ 99.17㎡×48.85万円=4844万円
建物 1500万円ー減価償却670万円=830万円
土地4844万円+建物830万円=5674万円
販売価格5880万円ですので、仲介手数料分の価格交渉が出来れば、これ以上ないほどの気象物件だと思います。
建物 1500万円ー減価償却670万円=830万円
土地4844万円+建物830万円=5674万円
販売価格5880万円ですので、仲介手数料分の価格交渉が出来れば、これ以上ないほどの気象物件だと思います。

ガラス戸が素敵な店舗のドア、
歩道付きの公道に面しているのでとても目立ちます。

2階建て、住宅のキッチンは1階、
2階は2部屋+納戸3.0帖です。

店舗をカフェにしたイメージ写真です。
楽しいお店になりそうです。










2階バルコニーからは和楽備神社が
見渡せ青空いっぱいです。
右手には蕨市役所が目の前、
東南向きのお家は、お日様もいっぱい!
1階店舗部分は約23㎡あります。
そんなに広くはありませんが、
だからこそそれを生かしたお店に
すれば、、とても夢が膨らみます。
1616サイズのユニットバスは2階、
システムキッチンは1階です。
2階にはゆったりとした8.0帖の洋室、
6.0帖の和室があります。
両部屋共に東南向きの角部屋なので、
陽光もいっぱい、眺望も素敵です。
カースペースは並列だと
奥行きが約4500のコンパクトカー
なら2台。大型車は縦列1台です。
1階店舗のバックヤードには
専用トイレと洗面台が付いています。
店舗の天井高は2700ありますので、
カウンター内の床を上げれば
排水も可能かと思います。
これだけ目立つ開放感いっぱいの
立地はとっても希少ですので、
ミニ店舗、ショップなどを叶えたい
方にはとてもおすすめのお家です。
1階2階にそれぞれ3.0帖の納戸も
ありますので、収納だけでなく
特に1階は店舗のストックブースとして
も重宝しそうです。
ぜひこのお家で夢をかなえてください。
見渡せ青空いっぱいです。
右手には蕨市役所が目の前、
東南向きのお家は、お日様もいっぱい!
1階店舗部分は約23㎡あります。
そんなに広くはありませんが、
だからこそそれを生かしたお店に
すれば、、とても夢が膨らみます。
1616サイズのユニットバスは2階、
システムキッチンは1階です。
2階にはゆったりとした8.0帖の洋室、
6.0帖の和室があります。
両部屋共に東南向きの角部屋なので、
陽光もいっぱい、眺望も素敵です。
カースペースは並列だと
奥行きが約4500のコンパクトカー
なら2台。大型車は縦列1台です。
1階店舗のバックヤードには
専用トイレと洗面台が付いています。
店舗の天井高は2700ありますので、
カウンター内の床を上げれば
排水も可能かと思います。
これだけ目立つ開放感いっぱいの
立地はとっても希少ですので、
ミニ店舗、ショップなどを叶えたい
方にはとてもおすすめのお家です。
1階2階にそれぞれ3.0帖の納戸も
ありますので、収納だけでなく
特に1階は店舗のストックブースとして
も重宝しそうです。
ぜひこのお家で夢をかなえてください。
物件情報
| 価格 | 5880万円 |
|---|---|
| 交通 | 「蕨」徒歩13分 「戸田」徒歩18分 |
| 所在地 | 蕨市北町2丁目6番3号 |
| 土地 | 99.17㎡ |
| 私道負担/道路 | 公道16m×私道4m |
| 建物 | 90.25㎡ |
| 構造/階建て | 木造2階建て |
| 完成年月日 | 2010年11月新築 |
| 間取り | 2DK+店舗+納戸×2 |
| 用途地域 | 第一種住居地域 |
| 建ぺい率/容積率 | 70%/200% |
| 土地権利/地目 | 宅地/所有権 |
| 車庫 | コンパクトカー並列2台 若しくは大型車縦列1台 |
| 現状 | 空き家 |
| 引渡し | 即可 |