Best1
高層階VS庭付き
どちらのお暮らしがお好みですか(*^^*)?
駅徒歩6分の利便性があり、尚且つ
閑静な住宅地内にある「オール電化マンション」
29.24坪のお庭は
約60帖の広~いお庭になります!
庭にかかる桜の木もプレミアム♪
まるで我が家の「桜」のようです(*\'▽\')
キッチンにも浴室にも窓がある、
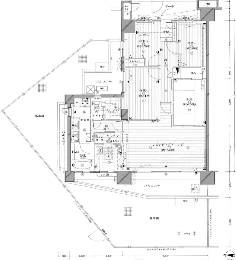
100.05㎡のひろ~い角部屋です!
緑豊かなゆとりある暮らしが叶うお部屋です。
どちらのお暮らしがお好みですか(*^^*)?
駅徒歩6分の利便性があり、尚且つ
閑静な住宅地内にある「オール電化マンション」
29.24坪のお庭は
約60帖の広~いお庭になります!
庭にかかる桜の木もプレミアム♪
まるで我が家の「桜」のようです(*\'▽\')
キッチンにも浴室にも窓がある、
100.05㎡のひろ~い角部屋です!
緑豊かなゆとりある暮らしが叶うお部屋です。
おすすめ度
0%
駅徒歩6分の便利な立地で・・・樹木の緑に囲まれ手ゆったりと過ごす、そんな素敵な暮らしがあります。
評価額
0%
2025年9月・5月の成約事例では㎡単価49.25万円でした。お部屋は100.02㎡×49.25㎡≒4925万円 こちらのお部屋は・・バルコニー30.10㎡・専用庭66㎡ある角部屋ですので通常20%UPですが、北西の角部屋ですので10%UPとして計算しても、4925万円×1.1=5417万円です。販売価格5380万円はおススメできる素敵なお部屋です。

リビングいっぱいに広がるハイサッシ、窓に映るお庭の緑、開放感いっぱいのリビングは、避暑地での暮らしのようです。

ゆとりある暮らし、ワンフロアー100㎡の専有面積の広さは格別です。

リビングのドアを開けると・・・日常とは思えない素敵な光景が・・・










4連窓で開口部が90%を占めるリビング♪
柱のスパンが気にならない大開口です(*\'▽\')
避暑地にいるような景色の中、
開放感あふれる寛ぎのリビングです!
庭付き1階の角住戸ならでは、
うれしいポイントがたくさん沢山♪
キッチンは動線が短く
使い勝手がいいコの字型!
2~3歩動けば手が届く、
振り返れば手が届く、
おしゃれに盛られた美味しい食事、
手を伸ばせばカウンターへ「ぽんっ」
待ちに待っていた家族がお皿を受け取る♪
緑の景色とさわやかな風、
お料理タイムが楽しくなりそうです♪
洗面室や浴室も、
とにかく広い、設備が大きい!!
2ボールの洗面ドレッサーは
家族みんなの朝時間を効率化(*^^*)
カウンターと一体の人造大理石ボウルは
汚れがたまりにくく掃除もスムーズです!
自慢ポイントは盛りだくさん!!
1620サイズのユニットバス♪♪
広い洗い場は憧れのサイズです
ゆっくり足を延ばして疲れを癒し、
「窓」に映る緑に癒され、
星空を見上げて癒され、
角部屋ならではの「窓」がある浴室です!
フルフラットな30.26坪の室内は、
有効面積が多く戸建より広くて暮らしやすい♪
望んでもなかなか手に入らない
「オンリーワン」なプレミアム住戸です
管理体制の良いマンションで、駐車場も無償です。広さも機能性も言うことなしの角住戸はお庭から外に出れば、マンション内で一番駅に近いお部屋です。
川口市の資産価値は利便性などから全体的に上昇傾向にあり高い水準を維持しています。京浜東北線沿線エリアと比較すると比較的リーズナブルな南鳩ヶ谷駅エリアですが、駅徒歩圏内の資産価値は時価、マンション価格ともに堅調に推移しています。専有面積100平米を超えるお部屋で、戸建より広いお庭がある角部屋は望んでもなかなか手に入らない資産です。 1住戸に1台無償の駐車場がある点と、大規模のメリット「管理」も付加価値とした販売価格です。
柱のスパンが気にならない大開口です(*\'▽\')
避暑地にいるような景色の中、
開放感あふれる寛ぎのリビングです!
庭付き1階の角住戸ならでは、
うれしいポイントがたくさん沢山♪
キッチンは動線が短く
使い勝手がいいコの字型!
2~3歩動けば手が届く、
振り返れば手が届く、
おしゃれに盛られた美味しい食事、
手を伸ばせばカウンターへ「ぽんっ」
待ちに待っていた家族がお皿を受け取る♪
緑の景色とさわやかな風、
お料理タイムが楽しくなりそうです♪
洗面室や浴室も、
とにかく広い、設備が大きい!!
2ボールの洗面ドレッサーは
家族みんなの朝時間を効率化(*^^*)
カウンターと一体の人造大理石ボウルは
汚れがたまりにくく掃除もスムーズです!
自慢ポイントは盛りだくさん!!
1620サイズのユニットバス♪♪
広い洗い場は憧れのサイズです
ゆっくり足を延ばして疲れを癒し、
「窓」に映る緑に癒され、
星空を見上げて癒され、
角部屋ならではの「窓」がある浴室です!
フルフラットな30.26坪の室内は、
有効面積が多く戸建より広くて暮らしやすい♪
望んでもなかなか手に入らない
「オンリーワン」なプレミアム住戸です
管理体制の良いマンションで、駐車場も無償です。広さも機能性も言うことなしの角住戸はお庭から外に出れば、マンション内で一番駅に近いお部屋です。
川口市の資産価値は利便性などから全体的に上昇傾向にあり高い水準を維持しています。京浜東北線沿線エリアと比較すると比較的リーズナブルな南鳩ヶ谷駅エリアですが、駅徒歩圏内の資産価値は時価、マンション価格ともに堅調に推移しています。専有面積100平米を超えるお部屋で、戸建より広いお庭がある角部屋は望んでもなかなか手に入らない資産です。 1住戸に1台無償の駐車場がある点と、大規模のメリット「管理」も付加価値とした販売価格です。
物件情報
| 価格 | 5380万円 |
|---|---|
| 交通 | 「南鳩ヶ谷」駅徒歩6分 |
| 所在地 | 川口市南鳩ヶ谷3-18-36 |
| 専有面積 | 100.02㎡ |
| 向き/所在階 | 北西角部屋/1階 |
| バルコニー | 30.10㎡・専用庭66.58㎡ |
| 管理費 | 17510円 |
| 構造/階建て | RC造/12階建て |
| 修繕積立金 | 16010円 |
| 敷地権利 | 所有権 |
| その他 | 専用庭 2000円/月 CATV50円/月 |
| 完成年月日 | 2004年1月新築 |
| 駐車場 | 自走式1台無料 |
| 総戸数 | 314戸 |
| 現状 | お住まい中 |
| 引渡し | 相談 |
| 特記事項 | 希少価値のある100㎡超、景色の素敵なお部屋です。 |