Best1
憧れを詰め込んだタマHouse
練馬区高松4丁目 11,280万円 都営大江戸線「光が丘」駅徒歩10分30秒
北東×北西の角地、
敷地面積38.73坪に
建坪57.61坪の大きな佇まい♪
タマホーム施工の注文住宅!
内外装フルリフォーム完了しました!!
太陽光発電&蓄電池搭載のオール電化(*´з`)
電動シャッターや昇降リフト、
ジェットバスや防音室など、
設備も機能も欲しいものが満載です!
敷地面積38.73坪に
建坪57.61坪の大きな佇まい♪
タマホーム施工の注文住宅!
内外装フルリフォーム完了しました!!
太陽光発電&蓄電池搭載のオール電化(*´з`)
電動シャッターや昇降リフト、
ジェットバスや防音室など、
設備も機能も欲しいものが満載です!
おすすめ度
0%
公園がや緑地が多い魅力的な住環境です。内外装フルリフォーム施工の長期優良住宅は、昇降リフト付きで老若男女問わず安心した暮らしが叶います。
ホームインスペクション済
ホームインスペクション済
評価額
0%
土地/近隣公示価格(高松4-7-22)144.7933万円・固定資産税路線価109.0万円 当該地の固定資産税路線価は119.0円/坪。公示価格換算・144.7933万円×(119/109)×=158.07万円/坪。実勢価格換算158.07万円×1.35=213.39万円。土地38.73坪×213.39万円≒8264万円
建物評価 /190.45㎡・4039万円-1352万円(減価償却)≒2687万円。
太陽光発電システム+蓄電池+認定長期優良住宅・昇降機 オプション追加 リフォーム/1080万円×0.7=756万円
高松物件評価額/土地8264万円+建物2687万円+リフォーム756万円=11707万円
仲介手数料も掛かりません(370万円)
建物評価 /190.45㎡・4039万円-1352万円(減価償却)≒2687万円。
太陽光発電システム+蓄電池+認定長期優良住宅・昇降機 オプション追加 リフォーム/1080万円×0.7=756万円
高松物件評価額/土地8264万円+建物2687万円+リフォーム756万円=11707万円
仲介手数料も掛かりません(370万円)

ムーディ―な照明や、
アクセントウッドの天井、
我が家の顔は好印象です!

ヌード階段も憧れの一つ♪
昇降リフトが付いているから
3階建てでも移動がスムーズ!

3階のWC前には
女優ミラーを設置しました!
毎日の健康チェックに!!










光が丘駅から13分
緑豊かな大公園に囲まれて
買い物施設も充実した立地♪
整備された歩道に面し、
車庫スペースは住宅街からストレスフリーな車庫入れです!
1階和室を洋室に変更、
カウンタースペースも設置して
趣味やワークスペース、使い方多様です(*´з`)
買い物荷物が多い時は
昇降リフトで2階に上がる↑
約28.7帖の大空間リビングです(*\'▽\')
大理石調の床、
無垢の羽目板も素敵なポイント!
2ボウルのうったりとした洗面台や、
ジェットバス&TV付きのユニットバス!!
3階には防音室ありΣ(・□・;)
音楽や映画鑑賞、
大音量で楽しめる空間です!
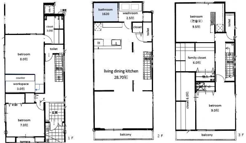
3SSLDkの大型間取り
末永く安心して暮らせる「長期優良住宅」です♪
緑豊かな大公園に囲まれて
買い物施設も充実した立地♪
整備された歩道に面し、
車庫スペースは住宅街からストレスフリーな車庫入れです!
1階和室を洋室に変更、
カウンタースペースも設置して
趣味やワークスペース、使い方多様です(*´з`)
買い物荷物が多い時は
昇降リフトで2階に上がる↑
約28.7帖の大空間リビングです(*\'▽\')
大理石調の床、
無垢の羽目板も素敵なポイント!
2ボウルのうったりとした洗面台や、
ジェットバス&TV付きのユニットバス!!
3階には防音室ありΣ(・□・;)
音楽や映画鑑賞、
大音量で楽しめる空間です!
3SSLDkの大型間取り
末永く安心して暮らせる「長期優良住宅」です♪
物件情報
| 価格 | 11,280万円 |
|---|---|
| 交通 | 都営大江戸線「光が丘」駅徒歩10分30秒 |
| 所在地 | 練馬区高松4-23-9 |
| 土地 | 128.05m2(38.73坪)(登記) |
| 私道負担/道路 | 無、北東13.9m幅(接道幅17.6m)、北西3.3m幅 |
| 建物 | 190.45m2(57.61坪)(登記) |
| 構造/階建て | 木造3階建 |
| 完成年月日 | 2012年11月 |
| 間取り | 3SSLDK |
| 用途地域 | 第一種中高層 |
| 建ぺい率/容積率 | 70%・200% |
| 土地権利/地目 | 所有権/宅地 |
| 車庫 | 1台 |
| 現状 | 空家 |
| 引渡し | 即可 |
| 特記事項 | 宅地造成工事規制区域、高度地区、準防火地域 |